Woonhuis

Kamerlingh Onnesweg 98

Beschikbaar
Kamerlingh Onnesweg 98 1223 JM Hilversum

KAMERLINGH ONNESWEG 98 + KAMERLINGH ONNESWEG 98A.

This is some text inside of a div block.
sq ft.
2
slaapkamers
1
badkamers
6
kamers
203
m² wonen
363
m² perceel
5
Verdieping
Omschrijving

Over dit huis

KAMERLINGH ONNESWEG 98 + KAMERLINGH ONNESWEG 98A. Een WOONHUIS met 203m2 wonen en een BEDRIJFSPAND met 114m2 oppervlak! Ruime, geheel onderkelderde 2-onder-1-kapwoning met tuin en oprit voor meerdere auto’s, woonoppervlak 203 m2 EN VRIJSTAAND BEDRIJFSPAND met twee verdiepingen, verwarming, electra, eigen WC en veel bergruimte, gebruiksoppervlak 144 m2, 361 m2 eigen grond.  

Locatie:

Op 300 meter van hei en bos. Station, winkels, ziekenhuis, sportvelden, scholen ed. binnen een straal van 1 km. Snelle verbinding naar de A 1 en A 27 

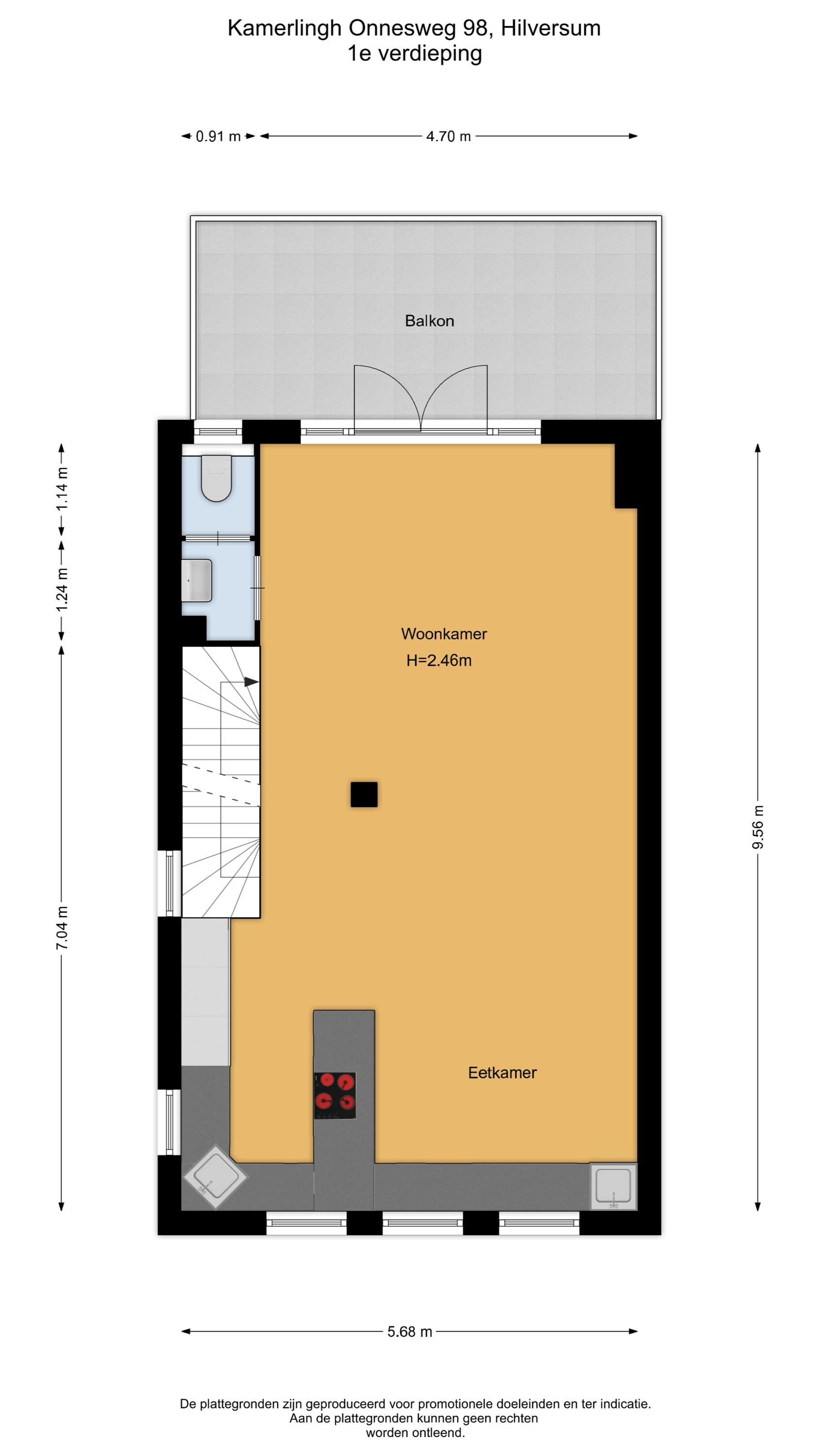
Kamerling Onnesweg 98: WONING

Helft van een dubbel woonhuis met veel volume. Ruimte voor bedrijf of kantoor aan huis. Of te gebruiken als dubbel woonhuis, mantelzorg woning. Kantoor, studio/praktijk etc.,evt twee appartementen.  
De begane grond verdieping van de woning is geheel onderkelderd.
Begane grond is nu in gebruik als kantoor en werkruimte. 
De eerste verdieping heeft een grote woonkamer, een riante woonkeuken met apparatuur, een toilet, openslaande deuren en een ruim balkon.   
De tweede verdieping heeft 2 slaapkamers en grote badkamer met douche, bad,  vaste wastafel en wasmachineaansluiting. Aparte wc. 
Daarboven nog een bergzolder met vlizotrap. 

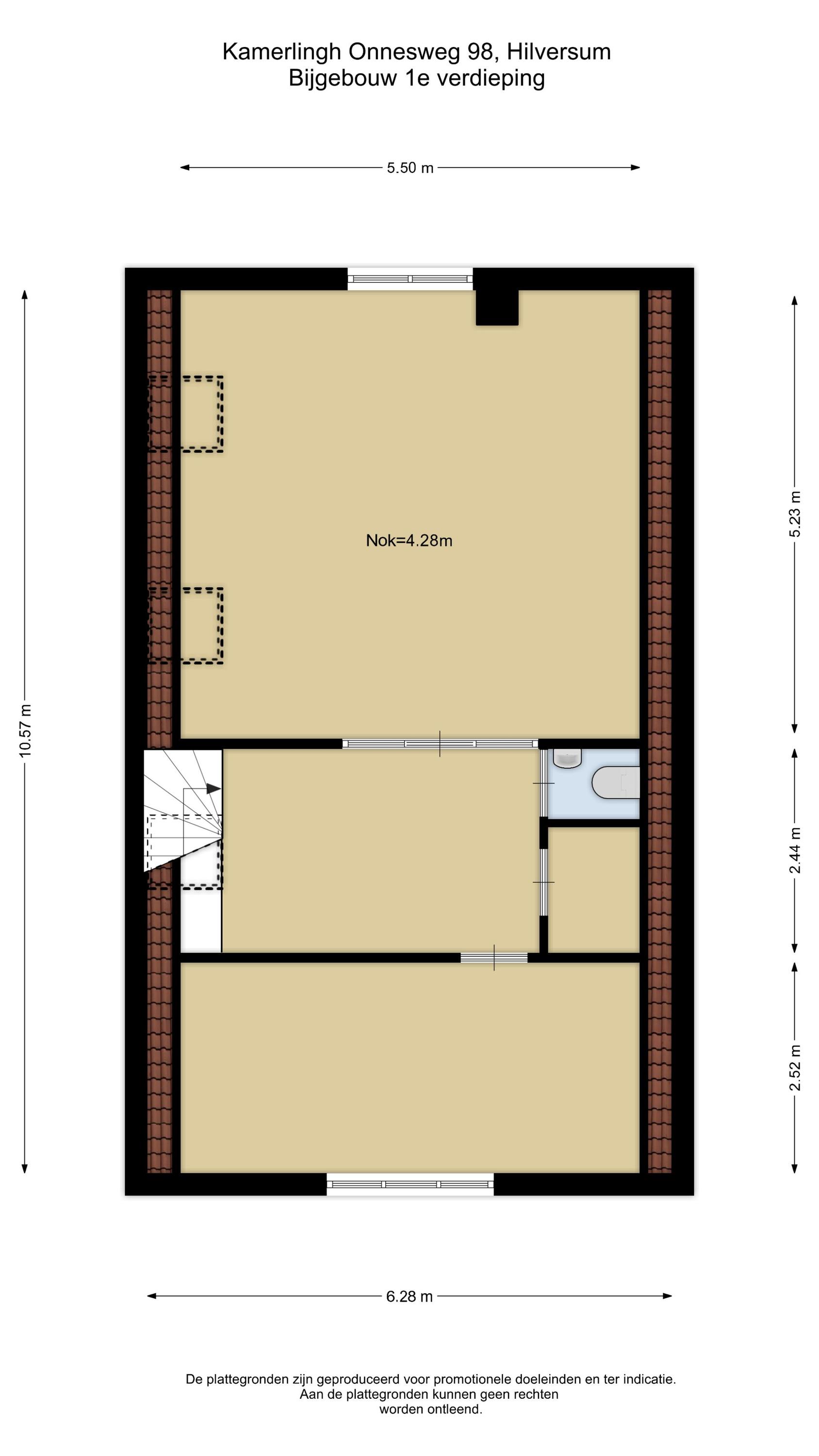
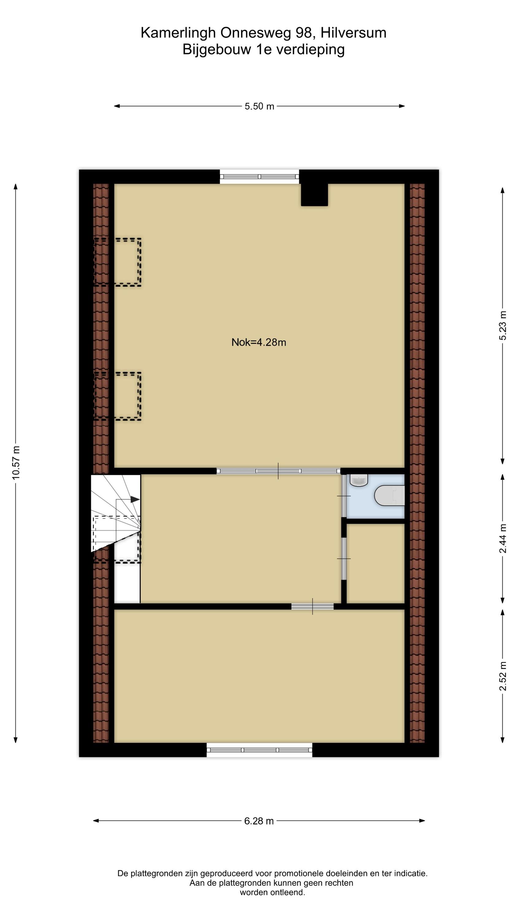
Kamerlingh Onnesweg 98 A; BEDRIJFSPAND

Vrijstaand pand achter no 98. Bereikbaar met auto via gang naast pand 98. Nu in gebruik als werkplaats en magazijn voor een zadelmakerij. 
Ook te gebruiken als werkplaats, praktijk, studio, kantoor, magazijn ed. Ook om te bouwen tot 1 ruime of 2 kleinere woonruimtes (appartementen) van ca. 70m2.  Nu is er een grote overdekte buiten ruimte voor opslag en parkeren. Als je deze overkapping geheel of gedeeltelijk weg haalt ontstaat er een grote achtertuin/parkeerterrein, of tuin voor de nieuw te ontwikkelen woningen. 
Kortom deze twee panden bieden beiden legio gebruiks/ontwikkelingsmogelijkheden. 
Gunning eigenaren voorbehouden, aanvaarding in overleg.
Neem voor meer informatie kontakt op met Erwin Voorneveld.

Disclaimer:
Dit is een bijzondere aanbieding met diverse gebruiksmogelijkheden. Voorneveld makelaars en haar opdrachtgevers aanvaarden geen enkele aansprakelijkheid voor de diverse gebruiksmogelijkheden. Het is aan de opvolgende eigenaar of haar of zijn deskundigen om de mogelijke bestemming(en)  te onderzoeken, aan te vragen en vergund te krijgen.  
 

Een virtuele tour door het huis.

No items found.
No items found.

Plattegronden

No items found.

Aanvaarding

Prijs
€ 1.195.000 k.k.
 per maand
Status
Beschikbaar
Oplevering
Adres
Kamerlingh Onnesweg 98 1223 JM Hilversum

Bouw

Soort woonhuis
Eengezinswoning
,
Twee onder een kapwoning
Soort bouw
Bestaande bouw
Bouwjaar
1934

Oppervlakten en inhoud

Woonoppervlakte
203
Perceeloppervlakte
363
Inhoud

Indeling

Aantal kamers
6
Aantal slaapkamers
2
Aantal badkamers
1
Aantal verdiepingen
5

Buitenruimte

Tuin
Hoofdtuin oppervlakte
Hoofdtuin ligging
Aantal bergingen
Geïnteresseerd?

Plan een bezichtiging.

Bel ons op voor direct contact. Of laat via onderstaand formulier jouw gegevens achter en wij nemen zo snel mogelijk contact met je op.
Bedankt voor je aanvraag! We zullen contact met u opnemen om de bezichtiging in te gaan plannen.
Helaas! Het is niet gelukt om het formulier te versturen. Probeer het opnieuw of neem direct contact met ons op via bovenstaand telefoonnummer.
Ander aanbod

Andere woningen die mogelijk ook interessant zijn.

Nieuwsgierig naar jouw verkoopmogelijkheden?

Neem contact met ons op voor een verkoopgesprek. Dat mag uiteraard ook voor een aankoopgesprek of voor het inplannen van een taxatie. We nemen samen graag jouw woonwensen en mogelijkheden door.
Bedankt we hebben je bericht ontvangen.
Er ging iets mis bij het versturen van het formulier. Probeer het later opnieuw of neem direct contact op via info@voorneveld.nl
Inloggen bij move.nl